Offering:
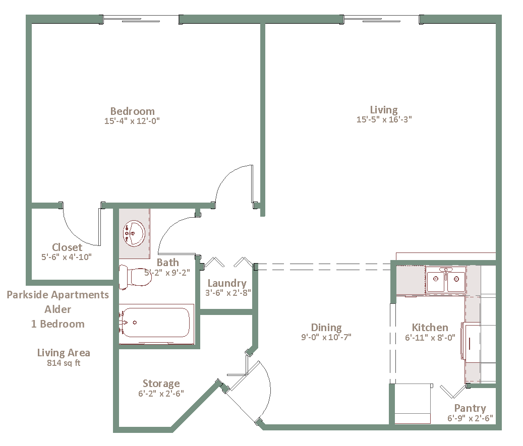
1 bedroom apartments
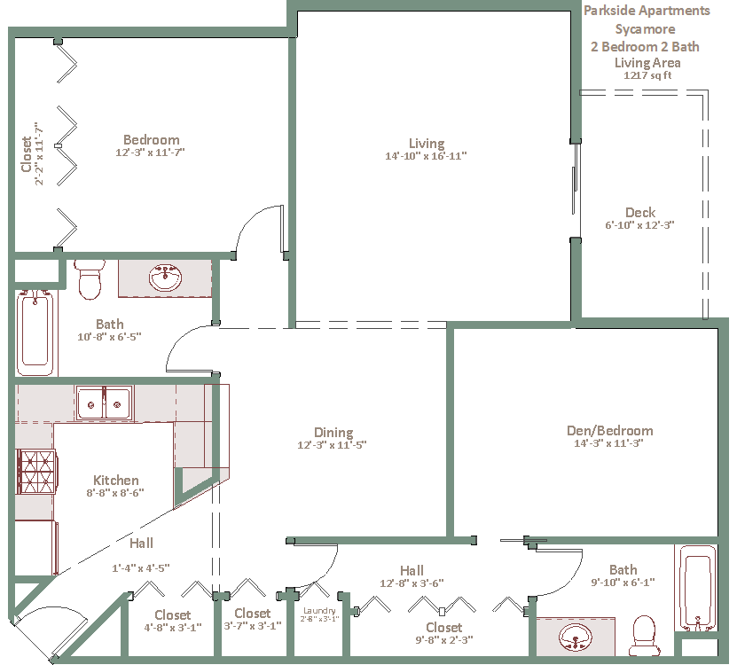
starting at $1314*Available Soon2 bedroom apartments
starting at $1511*Units Available!
Renter's Insurance
To protect your belongings in case of fire, theft, or damage, you need your own insurance policy, called an HO4 renter's insurance policy. You also need liability coverage for damages caused by negligence. Contact your Insurance agent today. If you do not have an agent and don’t wish to look into other companies you can apply through Assurant Insurance.
Property Features
Ranch Style
Apartments
Beautiful Ranch Style homes with private patio and balcony
Offstreet
Parking
Underground and surface lot parking available
Emergency Maintenance
24-Hr Emergency Maintenance
Controlled
Access
Enjoy peace of mind with a controlled access lobby
Unit Amenities
- Air conditioning
- Dishwasher
- Washer / Dryer*
- Storage space
- Elevator
- 1 Bedroom ranch style apartment homes
- 1 Bedroom loft apartments
- 2 Bedroom / 2 full bath ranch style apartment homes
- On-site management & maintenance services
- Professional management & leasing staff
- Controlled access
- Parking garage
- Parking lot
- Cats allowed
